Notre bureau d’étude VRD interne réalise des études de conception VRD sur des projets de toutes natures suivant les besoins de nos clients.
Nous accordons la plus grande importance à la démarche HQE ainsi qu’au respect des normes et réglementations, afin que chaque projet
intègre la notion du respect du paysage urbain, la sécurité des usagers, la qualité du cadre de vie et l’environnement.
Nous accordons également la plus grande importance au respect du projet, des choix architecturaux.
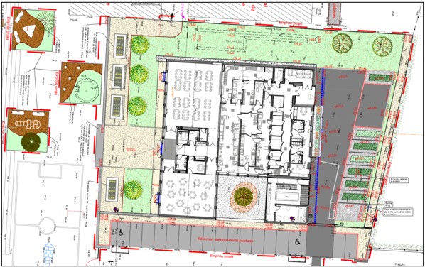
- Les aménagements urbains (publics) : voirie, parking, cheminement doux, aménagement urbain, piste cyclable/voie verte, PMR, cour d’école, centres aquatiques, déchèterie, etc.
- Les aménagements extérieurs (privés) : voirie, stationnement, cheminement doux, rampes PMR, pour projets de type crèche, plate-forme logistique, tertiaire, logements, loisirs, etc.
- Les réseaux divers : AEP, BT, Télécom/FO, Gaz, éclairage extérieur, IRVE, etc...
- Les réseaux d’assainissement eaux usées
- Les réseaux d’assainissement eaux pluviales et les ouvrages de gestion des eaux pluviales à la parcelle
- Notice descriptive VRD pour Permis de Construire (PC), incluant le descriptif et le dimensionnement des ouvrages de gestion des eaux pluviales
- Analyse des études de sols (dans le cadre des études VRD)
- Analyse des études de pollution (dans le cadre des études VRD)
- Réemploi des matériaux / gestion des déchets
Exemple de projet VRD 2D et 3D réalisé sur Mensura

